玉名市玉名3号地 30坪 4SLDK 建売・一戸建て物件
玉名市玉名の建売・一戸建ての新築物件。30坪 4SLDKの間取り。玉名市立玉陵小学校・玉陵中学校校区。
建売住宅 販売価格
玉名市玉名3号地 3,348万円(税込)土地代込外構工事費込
玉名市玉名3号地 30坪 4SLDKの新築戸建て物件。玄関にはシューズクロークを配置。1階にも5.0帖の居室を設けました。2階にも3つの居室を確保。それぞれ収納スペースをしっかりと備えた間取りに。充実の標準仕様・設備もコミコミ価格の建売住宅です。
オール電化
エコキュート
全室LED照明付
全室カーテン付
外構工事費込
省令準耐火構造
ZEH水準
制震ダンパー
カップボード付き
シューズクローク
住宅ローンお支払い例
月々のお支払い費用例 59,095円
家賃並みのお支払い費用で、新築一戸建てのマイホーム。いま、お住いの家賃と比較してください。
3,350万円借入
40年払い
頭金なし
ボーナス払い 130,426円×年2回
住宅ローン変動金利 0.75%
消費税10%
<融資条件>地方銀行 変動金利 0.75% 40年払い ※この金利は2025年10月のものです。金利は毎月見直されます。 ※掲載価格は消費税10%で計算しております。消費税率の変更に伴い、価格も変更されます。

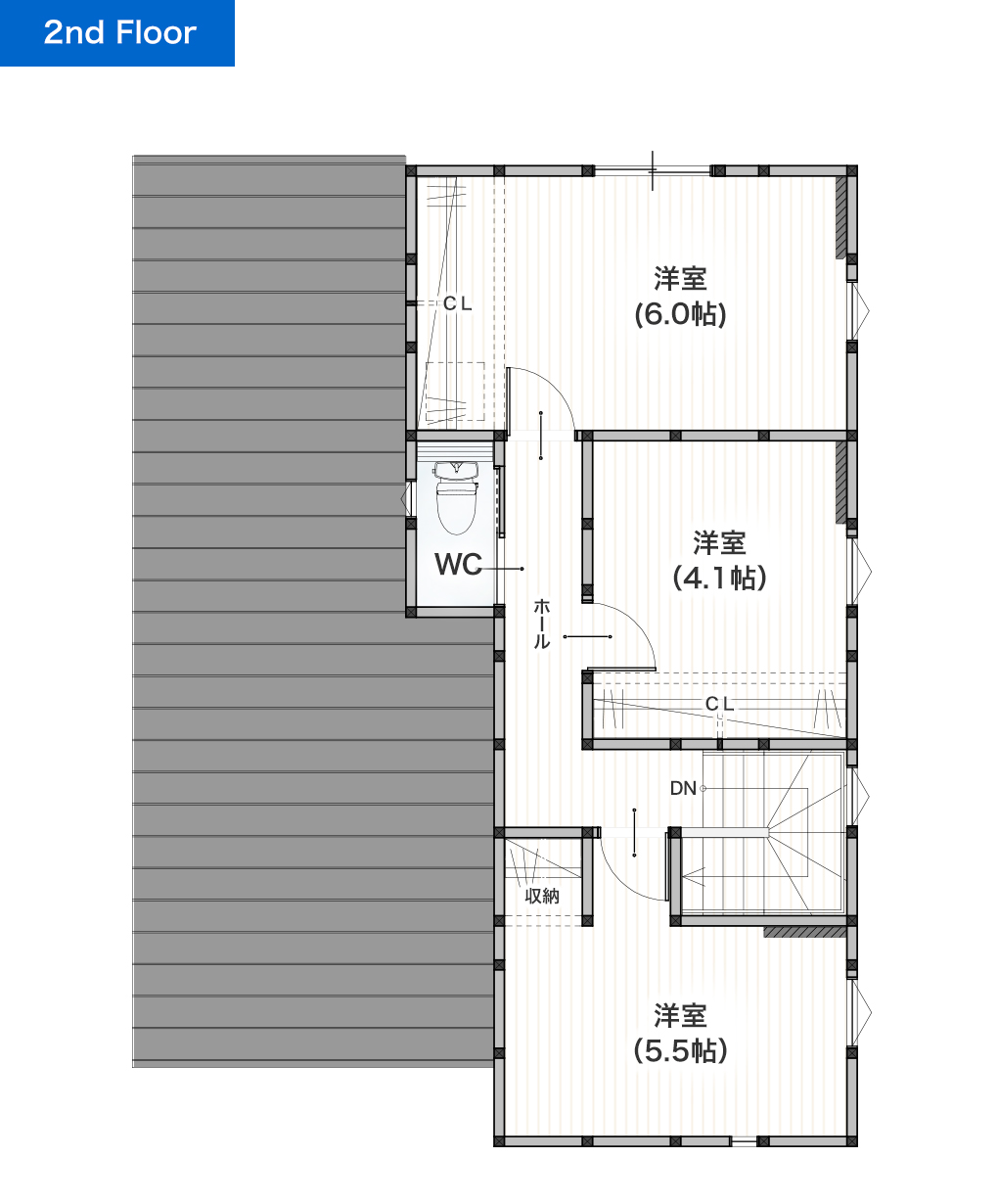
建売住宅 間取り図
シューズクロークも!
30坪 4SLDKの間取り
二階建て・30坪 4SLDKの間取りプランを採用した玉名市玉名3号地の新築戸建て物件。しっかりと収納スペースを確保した間取りになりました。
標準仕様
オール電化
エコキュート
全室LED照明付
全室カーテン付
外構工事費込
省令準耐火構造
ZEH水準
制震ダンパー
カップボード付き
シューズクローク
建売住宅 物件概要
玉名市玉名3号地の新築一戸建て住宅 30坪 4SLDK
所在地
熊本県玉名市玉名
交通
JR新玉名駅 徒歩約3分
校区
玉名市立玉陵小学校・玉陵中学校
価格
3,348万円(税込)
道路
南側幅員約6.0m私道に約9.9m接道
間取り
4SLDK
駐車場
3台
土地面積
182.90㎡(55.32坪)
建物面積
101.84㎡(30.80坪)
構造・工法
木造軸組2階建
屋根
ガルバリウム鋼板葺
土地の権利形態
所有権
地目
宅地
都市計画
非線引き区域
用途地域
無指定
建ぺい率
70.00%
容積率
200.00%
上水道
公営水道
下水道
公共下水道
電気
九州電力
ガス
-
取引態様
売主
建築確認番号
ACS第250419号
その他・特記事項
オール電化、エコキュート、全室LED照明、全室Low-Eペアガラス、全室カーテン付き、IHクッキングヒーター、1616システムバス、食器洗乾燥機、浴室乾燥機、三面鏡洗面台、TVモニター付インターフォン、床下収納、温水洗浄暖房便座、24時間換気システム、外構工事費込、省令準耐火構造
完成時期
2026年1月 完成予定
入居時期
相談
情報公開日
2025年10月21日
次回の更新予定日
-
玉名市玉名 周辺環境
好立地の分譲地 毎日の暮らしに便利!快適な周辺環境
公共交通機関
JR新玉名駅徒歩約3分(約190m)
産交バス「新玉名駅」バス停徒歩約6分(約443m)
産交バス「くまもと県北病院」バス停徒歩約12分(約936m)
産交バス「栗崎団地前」バス停徒歩約11分(約819m)
買い物・グルメ
ケーズデンキ玉名店徒歩約3分(約215m)
ホームセンターグッデイ 玉名店徒歩約4分(約311m)
セブン-イレブン KOYOくまもと県北病院店徒歩約9分(約640m)
ゆめマート玉名車約7分(約3.3km)
マルエイショッピングセンター 岩崎店車約6分(約2.5km)
金融・行政機関
九州労働金庫玉名支店車約2分(約1.4km)
玉名市役所車約5分(約2.2km)
肥後銀行 玉名支店車約6分(約2.9km)
熊本銀行 玉名支店車約6分(約2.8km)
玉名温泉郵便局車約5分(約2.1km)
教育施設
玉名市立玉陵小学校徒歩約10分(約800m)
玉名市立玉陵中学校徒歩約10分(約800m)
たまきな幼稚園徒歩約8分(約561m)
たまきな 学童クラブ徒歩約14分(約1080m)
認可事業所内保育所 さくら保育園徒歩約12分(約885m)
医療施設
くまもと県北病院徒歩約9分(約640m)
かい歯科KaiDental徒歩約6分(約420m)
ひらしま小児科医院車約5分(約2.5km)
むらかみクリニック車約7分(約3.3km)
公共施設・公園
新玉名駅前 さくらの広場徒歩約4分(約260m)
横枕児童公園徒歩約15分(約1.2km)
河崎児童公園徒歩約18分(約1.4km)
玉名カントリークラブ車約5分(約3.1km)
蛇ヶ谷公園車約6分(約2.9km)
※掲載情報は、2025年10月現在の情報です。最新の情報は、各施設へお問い合わせください。
建売住宅 アクセスマップ
玉名市玉名3号地の建売住宅 30坪 4SLDK アクセスマップ
※現地がストリートビューと現状でが多少変化している場合がございますので、ご了承ください。






