上益城郡嘉島町上六嘉13号地 29坪 4SLDK 建売・一戸建て物件
上益城郡嘉島町の建売・一戸建ての新築物件。29坪 4SLDKの間取り。嘉島東小学校・嘉島中学校校区。
建売住宅 販売価格
上益城郡嘉島町上六嘉13号地 3,628万円(税込)土地代込外構工事費込
上益城郡嘉島町上六嘉13号地 29坪 4SLDKの新築戸建て物件。玄関横にはシューズクロークを配置。キッチンまわりにパントリーを2カ所用意しました。2階にはウォークインクローゼット付きの居室も。充実の標準仕様・設備もコミコミ価格の建売住宅です。
オール電化
エコキュート
全室LED照明付
全室カーテン付
外構工事費込
省令準耐火構造
ZEH水準
制震ダンパー
シューズクローク付き
カップボード付き
住宅ローンお支払い例
月々のお支払い費用例 65,849円
家賃並みのお支払い費用で、新築一戸建てのマイホーム。いま、お住いの家賃と比較してください。
3,630万円借入
40年払い
頭金なし
ボーナス払い 130,426円×年2回
住宅ローン変動金利 0.75%
消費税10%
<融資条件>地方銀行 変動金利 0.75% 40年払い ※この金利は2025年10月のものです。金利は毎月見直されます。 ※掲載価格は消費税10%で計算しております。消費税率の変更に伴い、価格も変更されます。

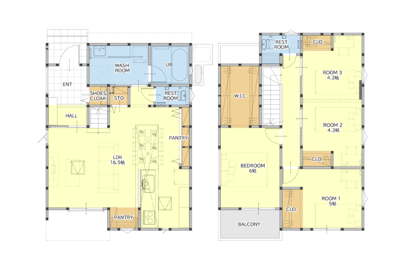
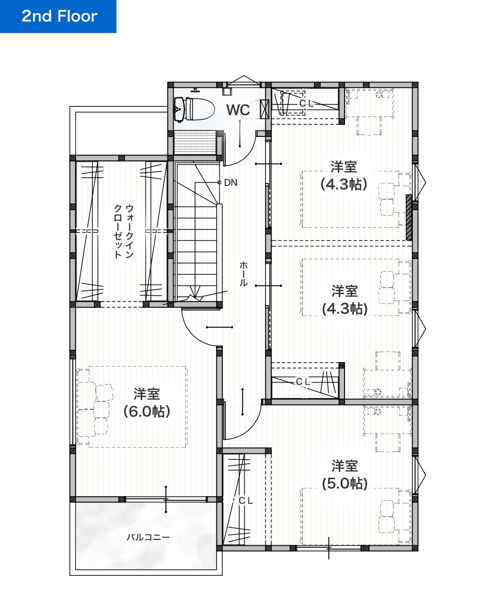
建売住宅 間取り図
ふたつのパントリー!
29坪 4SLDKの間取り
二階建て・29坪 4SLDKの間取りプランを採用した上益城郡嘉島町上六嘉13号地の新築戸建て物件。キッチンまわりにパントリーを2カ所用意しました!
標準仕様
オール電化
エコキュート
全室LED照明付
全室カーテン付
外構工事費込
省令準耐火構造
ZEH水準
制震ダンパー
シューズクローク付き
カップボード付き
建売住宅 物件概要
上益城郡嘉島町上六嘉13号地の新築一戸建て住宅 29坪 4SLDK
所在地
熊本県上益城郡嘉島町
交通
熊本バス「丸池」バス停 徒歩約5分
校区
嘉島東小学校・嘉島中学校
価格
3,628万円(税込)
道路
北西側幅員約6.0m町道に約13.1m接道
間取り
4SLDK
駐車場
2台
土地面積
201.02㎡(60.80坪)
建物面積
98.12㎡(29.68坪)
構造・工法
木造軸組2階建
屋根
ガルバリウム鋼板葺
土地の権利形態
所有権
地目
宅地
都市計画
市街化調整区域
用途地域
無指定
建ぺい率
40.00%
容積率
80.00%
上水道
井戸
下水道
公共下水道
電気
九州電力
ガス
-
取引態様
売主
建築確認番号
ACS第250421号
その他・特記事項
オール電化、エコキュート、全室LED照明、全室Low-Eペアガラス、全室カーテン付き、IHクッキングヒーター、1616システムバス、食器洗乾燥機、浴室乾燥機、三面鏡洗面台、TVモニター付インターフォン、床下収納、温水洗浄暖房便座、24時間換気システム、外構工事費込、省令準耐火構造、ZEH水準、制震ダンパー、上六嘉龍福寺・龍ノ前地区計画
完成時期
2026年1月 完成予定
入居時期
相談
情報公開日
2025年10月15日
次回の更新予定日
-
上益城郡嘉島町 周辺環境
好立地の分譲地 毎日の暮らしに便利!快適な周辺環境
公共交通機関
熊本バス「丸池」バス停徒歩約5分(約400m)
熊本バス「六嘉」バス停徒歩約9分(約650m)
熊本バス「上六嘉」バス停徒歩約9分(約700m)
御船インターチェンジ車約13分(約13.8km)
買い物・グルメ
コストコホールセール 熊本御船倉庫店車約3分(約1.5km)
ファミリーマート 嘉島上島店車約3分(約1.5km)
マルミヤストア 秋津店車約7分(約3.2km)
イオンモール熊本車約9分(約3.7km)
業務スーパー 嘉島上島店車約8分(約3.8km)
金融・行政機関
六嘉郵便局車約3分(約1.3km)
熊本銀行 嘉島支店車約7分(約3.4km)
肥後銀行嘉島支店車約9分(約4.1km)
教育施設
嘉島東小学校徒歩約20分(約1.6km)
嘉島中学校徒歩約25分(約2.0km)
かしま幼稚園(幼保連携型認定こども園)車約5分(約2.3km)
おひさまリリー保育園車約6分(約2.7km)
東部幼光保育園車約10分(約4.2km)
医療施設
のぐち皮ふ科車約5分(約2.8km)
からしま小児科車約6分(約2.7km)
ひがし歯科医院車約8分(約4.1km)
嘉島さいとう内科クリニック車約8分(約4.0km)
大隈整形外科医院車約9分(約4.6km)
公共施設・公園
嘉島町児童公園徒歩約10分(約750m)
嘉島町湧水公園 天然プール車約6分(約2.5km)
Mifune Terrace(ミフネテラス)車約8分(約4.5km)
嘉島町民体育館車約6分(約2.7km)
くまトヨスポーツパーク(嘉島町総合運動公園西エリア)車約7分(約3.9km)
※掲載情報は、2025年10月現在の情報です。最新の情報は、各施設へお問い合わせください。
建売住宅 アクセスマップ
上益城郡嘉島町上六嘉13号地の建売住宅 29坪 4SLDK アクセスマップ
※現地がストリートビューと現状でが多少変化している場合がございますので、ご了承ください。







